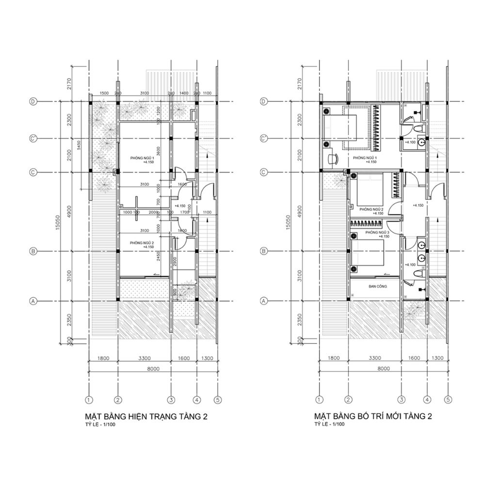
BỐ TRÍ MẶT BẰNG
Khai thác hiện trạng, đề xuất giải pháp bài trí tối ưu cho người dùng

+84 93520757
info@millenniumbrothersco.com
103 Nguyễn Thị Thập, P. Tân Hưng, Quận 7, TP.HCM,
Moodboard
Đình hình cảm xúc chung xuyên suốt
qua đề xuất tổng hòa Vật liệu, Đồ nội
thất và giải pháp trang trí khác


+84 93520757
info@millenniumbrothersco.com
103 Nguyễn Thị Thập, P. Tân Hưng, Quận 7, TP.HCM,
Diễn họa 3D
Minh họa thiết kế bằng hình ảnh CGI/render 3D
chất lượng cao thể hiện bởi nghệ sĩ chuyên nghiệp

+84 93520757
info@millenniumbrothersco.com
103 Nguyễn Thị Thập, P. Tân Hưng, Quận 7, TP.HCM,
Bản vẽ kích thước
Minh họa giải pháp thiết kế
bằng bản vẽ kỹ thuật kích thước.
Phù hợp cho báo giá, dự toán
Và lập bảng khối lượng.

+84 93520757
info@millenniumbrothersco.com
103 Nguyễn Thị Thập, P. Tân Hưng, Quận 7, TP.HCM,